醫用門_氣密門_手術室門_病房門_醫用子母門_醫用自動門_西安捷申達門業服務熱線:15829680868
公司郵箱:578427336@qq.com
公司網址:www.fjgznews.com
公司地址:西安市高新區丈八街辦長安科技園
發展大道25號歐凱創業小鎮4樓401室

應用場景:
產品適用于醫院診室門、病房門、盥洗室及其它辦公區域。
產品特點:
1.大氣美觀的門體外形設計,形式多樣,滿足不同客戶個性化需求。
2.門體可選擇鋁合金門框環保填充工藝、鋁蜂窩填充工藝和鋼制門體,可配置底部下沉式密封刷條提升氣密性;
3.采用高品質的五金配件,美觀大方,使用可靠,根據要求可選配門鎖、閉門器和地彈簧等多種附件;
4.精工制造,從材料到工藝,五金配件確保產品品質,使產品使用壽命增加;
5.采用多形式門洞包邊,且配有高強度耐磨封條,滿足凈化要求。
技術參數:
門框鋁合金厚度··································2mm
門扇鋼板厚度··································1mm
門扇厚度··································40mm
門寬度/高度·····································800~1000mm*2100mm
開門角度···········································0°-170°
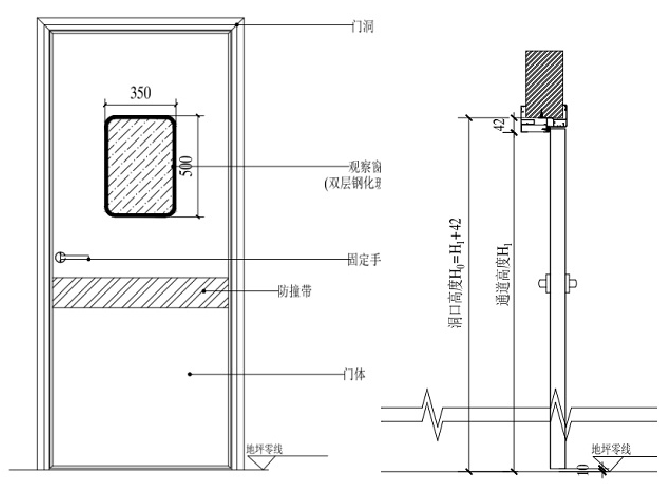
結構示意:
